IHK — Büro- und Seminargebäude

  • Kunde:
    IHK Koblenz
  • Standort:
    Bad Kreuznach
  • Datum:
    08.2017
  • Größe:
    BGF 1.504 m²
  • Status:
    Fertiggestellt
  • Typologie:
    Bürogebäude

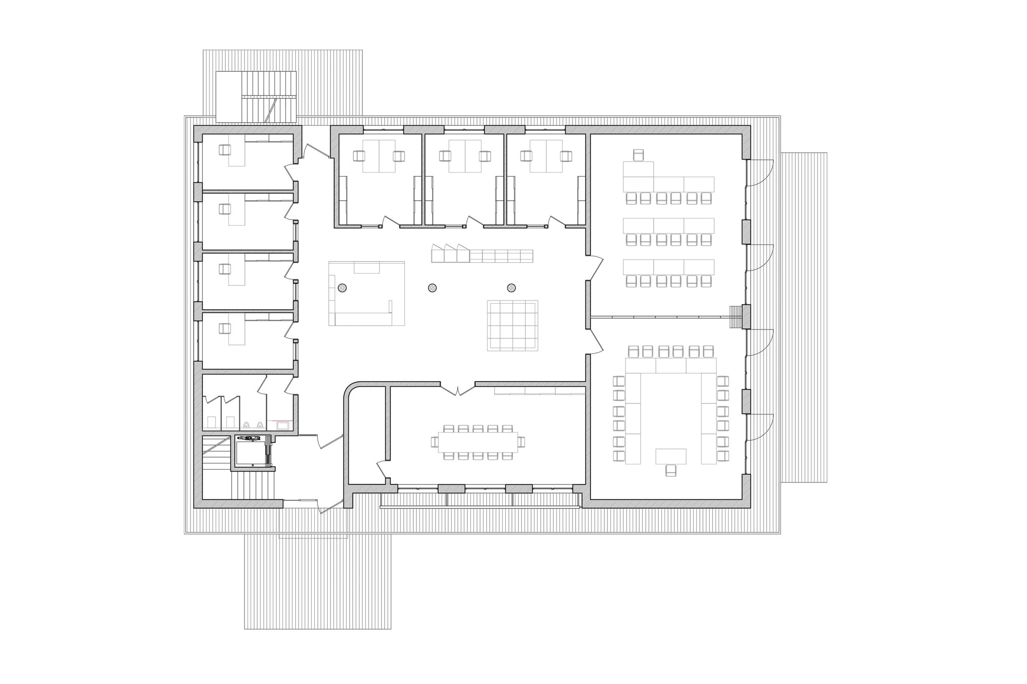
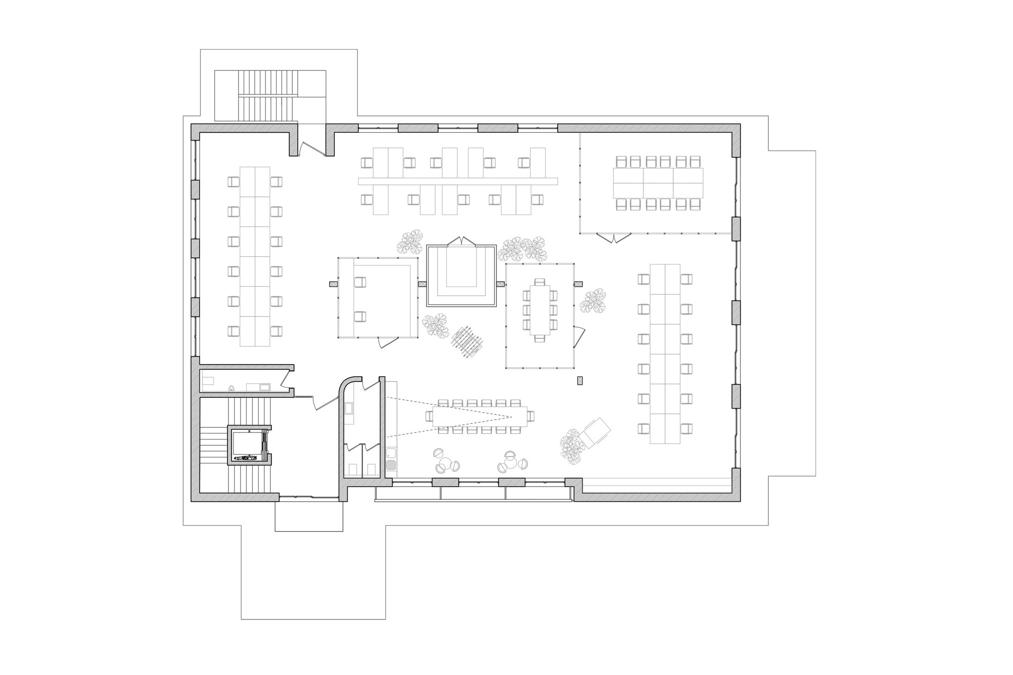
Der klare Mauerwerksbau besticht durch seine einfache Form. Zwei Fensterformate gliedern die Fassaden entsprechend ihren dahinter liegenden Funktionen. Die homogene Farbgestaltung von Fassade, Absturzsicherung und Fensterrahmen unterstützt die reduzierte Haltung. Straßenseitig vereint die im Rücksprung flächenbündig angebrachte Textilfassade mehrere Aufgaben. Sie überspielt die zur Südseite orientierten Fenster untergeordneter Räume, dient deren Verschattung und gibt dem Gebäude mit seiner Gestaltung tags und nachts auf vielfältige Weise eine starke Adresse. Die Grundrissstruktur ordnet sich in Flexibilität und Funktion ihrer Nutzung unter und hilft den täglich wechselnden Raumanforderungen gerecht zu werden. Ein Foyerbereich mit vielseitigen Aufenthaltsqualitäten empfängt die Besucher und unterstützt sie während ihres Aufenthalts mit reichhaltigem Service und Angebot.