ODD — Lager- und Produktionsgebäude mit Büroflächen

  • Kunde:
    ODD
  • Standort:
    Bad Kreuznach
  • Datum:
    01.2016
  • Größe:
    BGF 4.940 m²
  • Status:
    Fertiggestellt
  • Typologie:
    Gewerbebau

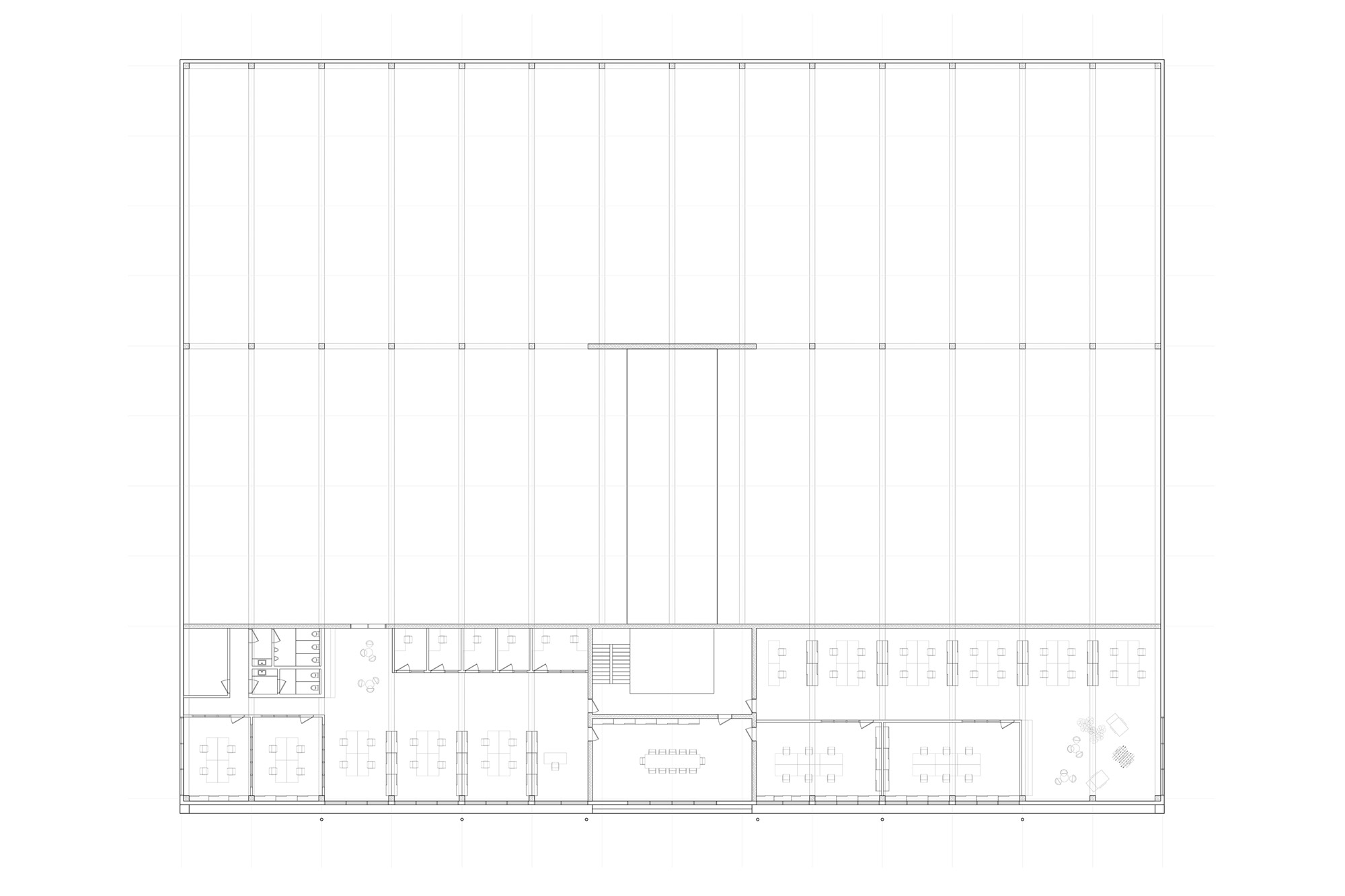
Die Mieter wurden frühzeitig in den Gestaltungsprozess mit eingebunden. Neben der Entwicklung von Produktions- und Lagerkapazitäten wurde der Fokus auf die Mitgestaltung notwendiger Büroflächen gelenkt. Das kreative, junge Klientel wünschte sich einen minimalistischen Rohbau mit loftartigem Charakter und innerbetrieblichen Sichtbezügen zwischen Bürowelt und Produktion. Mit einer APP-basierten Welt vergleichbar, steht das Gebäude mit seinem Raumangebot für die Hardware, deren Software wechselt, d.h. die Büroflächen sich in Schnitt, Anzahl oder Form anpassen oder atmosphärisch wandeln lassen.