Clubsandwich — Meffert Farbwerke Kasino mit Umkleiden und Büros

  • Kunde:
    Meffert AG
  • Standort:
    Bad Kreuznach
  • Datum:
    03.2018
  • Größe:
    BGF 2.625 m²
  • Status:
    in Planung
  • Typologie:
    Industriebau

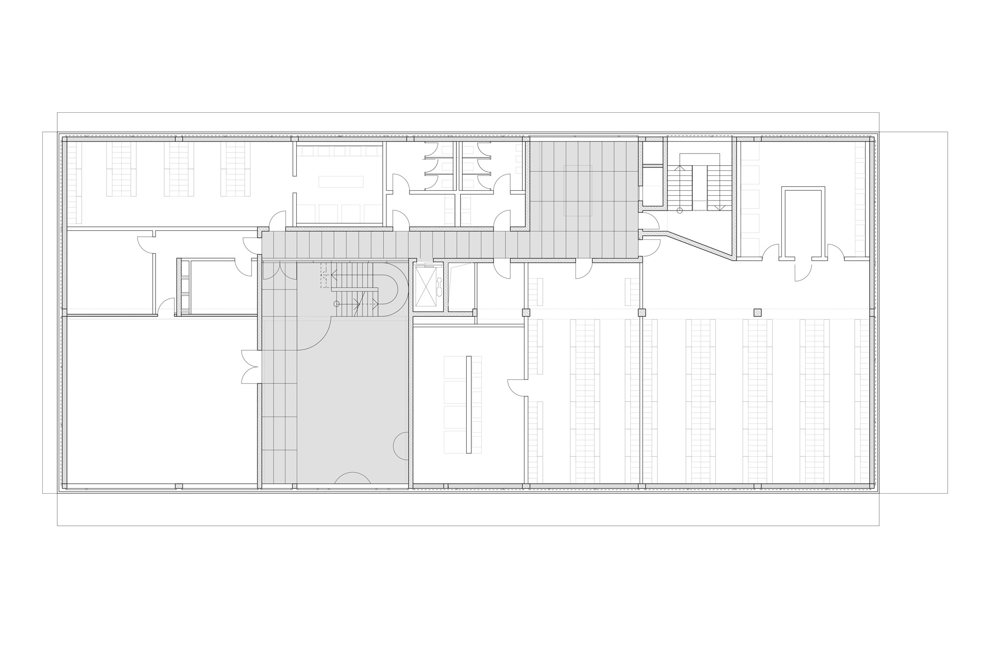
Das neue Sozialgebäude der Firma Meffert AG Farbwerke in Bad Kreuznach ist ein funktionaler Hybrid. Das Erdgeschoß ist dem leiblichen Wohl gewidmet. Eine Kantine mit entsprechender Küche, eine Kaffeebar mit Lounge und eine Sonnenterrasse bestimmen das räumliche Gefüge. Über die zentrale, zweigeschossige Lobby werden die unterschiedlichen Geschosse und Nutzungseinheiten verbunden. Das zweite Geschoß beherbergt Umkleiden, Waschräume und einen Fitnessraum zur Förderung der gesundheitlichen Bildung der Angestellten. Die dritte Ebene soll die Personalabteilung und den zentralen Einkauf mit Besucherverkehr aufnehmen. Die Fassaden reagieren durch Öffnungsgrad und Perforation auf die dahinter liegenden Nutzungen, das formale und materielle Konzept orientiert sich am vorhandene Bestand des Meffert Hauptsitz. Die Idee die zwei notwendigen Treppenhäuser im zweiten Geschoß mit einem Flur zu verbinden, rührt aus den wichtigen Wegebeziehungen Parkplatz, Umkleide und Arbeitsplatz der Mitarbeiter. Diese funktionale und räumliche Beziehung bestimmt die Struktur und wird gestalterisch attraktiv umgesetzt. Der Bau ist zusammen mit Sonja Nagel und Jan Theissen aus Stuttgart entworfen und wurde gerade durch die Baurechtsbehörde genehmigt.