Fuchsbau — Gemeinsames Wohnen von Jung und Alt

  • Kunde:
    Mörk Immobilien
  • Standort:
    Heilbronn
  • Datum:
    06.2015
  • Größe:
    BGF 2.158 m²
  • Status:
    Abgeschlossen
  • Typologie:
    Sozialer Wohnungsbau

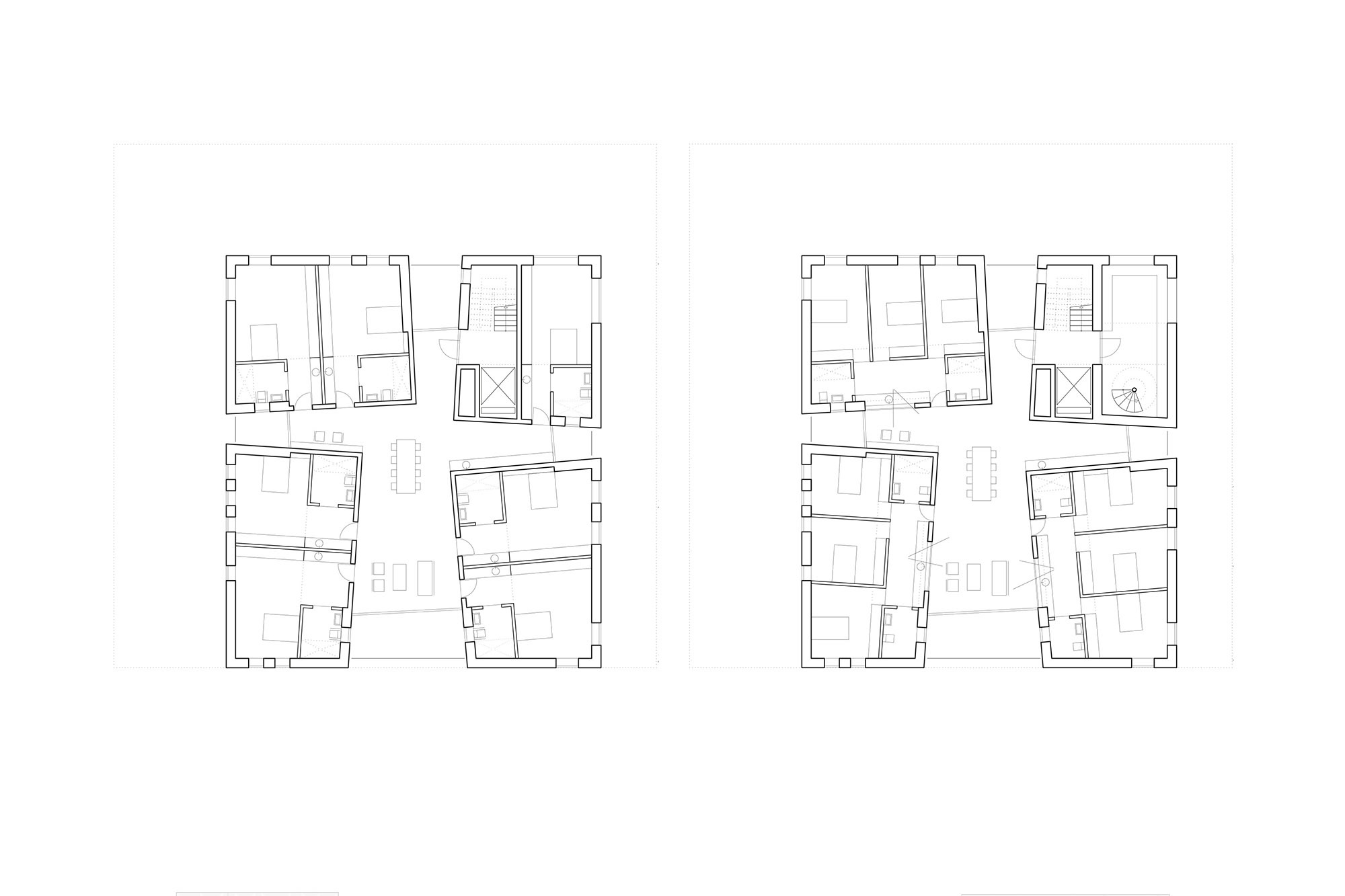
Die Grundidee der „Wohnanlage Fuchsbau“ ist das gemeinschaftliche Wohnen im Alter. 6-7 Personen wohnen in einer Wohngruppe zusammen. Jeder hat seinen Rückzugsraum mit barrierefreiem Bad und eigener Pantryküche. Gegessen werden kann im gemeinschaftlichen Wohn- und Kommunikationsbereich der Geschosse. Dieser Bereich formuliert durch seinen sternförmigen Grundriss unterschiedliche Raumqualitäten und Begegnungsflächen, die individuell von den Bewohnern mit Funktionen bespielt werden können (gemeinsame Bibliothek, Schach-Ecke, Computerarbeitsplatz, Atelier für kreative Hobbies). Jede Wohngruppe verfügt über ein Schaltzimmer am Treppenhaus, welches sowohl für zusätzliche Bewohner, Gäste, aber auch zur Unterbringung von Servicekräften genutzt werden kann. Jede Etage hat sowohl Ausblicke als auch unterschiedliche Balkonangebote und reagiert so auf Himmelsrichtungen und Ausblicke. Durch eine vollständige rollstuhlgerechte Ausformulierung und Dimensionierung der Flächen und Nutzungseinheiten hält das Gebäude der inklusiven Idee alle Vorraussetzungen vor. Das Angebot an Begegnung, Kommunikation, Versorgung und Interaktion wird durch die zusätzlichen Programme im Erdgeschoss und auf dem Dach vervollständigt und abgerundet.

Der Gemeinschaftsraum im Erdgeschoss ist Waschküche, Spielezimmer, halböffentliche Begegnungsfläche und auch Büro für die „Leitung“ und „Verwaltung“ der Anlage. Hier kulminiert die Idee des offenen Hauses. Einerseits durch den zusätzlichen, zentralen Weg durchs Haus, andererseits durch die der Promenade zugewandten Nutzung mit Gemeinschaftsraum, Loggia und Terrasse. Eine Praxis zur medizinischen Versorgung der Bewohner und Nachbarschaft kann ebenfalls im Erdgeschoss angesiedelt werden. Der Grundriss ist allerdings so konzipiert, dass auch hier eine 4er Wohngemeinschaft mit Gartenanteil angeboten werden kann.

Die flexible Grundformation lässt im Übrigen auch den Ausbau zu Wohngemeinschaften für Studenten zu. Der individuelle Platzbedarf dieser „jungen Hasen“ ist geringer, weswegen statt zwei jeweils drei Zimmer in einem „Turm“ verortet wurden. Aufgrund dieser Flexibilität lässt sich auch ein generationsübergreifendes Wohnkonzept realisieren und ein buntes, gesellschaftlich heterogenes Gefüge unterstützen.